Что изменилось в моём проектировании за два года - «Умный Дом и решения» » Умный Дом и решения
Что изменилось в моём проектировании за два года - «Умный Дом и решения»
Что такое Умный дом — это система домашних устройств, связанных между собой и выполняющих действия по команде человека или даже без его участия, по расписанию или сигналу от датчика. Некоторые умные дома управляются через приложения и голосом через умные колонки, другие — с помощью отдельных устройств. Задачи тоже могут быть разными: повысить комфорт, сэкономить время или обеспечить безопасность..

Новинки / Производитель / СТАТЬИ

Что изменилось в моём проектировании за два года - «Умный Дом и решения»

  • Митрофан
  • 19-мая-2023, 19:19
  • 0 комментариев
  • 2 470 просмотров

Как я уже писал, я сторонник того, что проект инженерных систем, сделанный больше года назад, нуждается в корректировке. Вот статья Корректировка и актуализация проекта на эту тему.

Сейчас я корректирую проект систем в квартире, который делал два года назад, в 2021-м.

Напишу про несколько моментов по оформлению проектов, которые я стал делать по-другому за это время.

Оглавление

Добавил во все проекты оглавление. Раньше иногда им пренебрегал, а сейчас обязательно пишу его везде, где количество листов больше 5. Вторым листом, после титульного.

Нумерация листов и оформление рамки

Номера листов в правом нижнем углу каждого листа всегда соответствуют порядковому номеру листа PDF. Раньше мог позволить себе добавить какой-то промежуточный лист с номером типа 10.1 или не считать титульный лист в нумерации, из-за этого много неудобств. Этим грешат почти все дизайн-проекты. Из-за этого, просматривая PDF документ не получается ввести нужный номер листа и сразу перескочить на правильный лист.

Также больше внимания уделяется оформлению рамки каждого листа проекта. Наименование и номер листа максимально крупно. Название проекта, адрес объекта, дата корректировки проекта, исполнитель — всё должно быть заметно. Чуть ли не в половине дизайн-проектов (а иногда ещё проктов вентиляции, кондиционеров, отопления) вижу полупустую рамку без адреса и общего количества листов, зато с вписанными фамилиями всех участников проектирования, что мне нужно меньше всего.

Смотрите, вот прямо сейчас работаю с дизайн-проектом, там такая рамка:

Кто автор проекта? Титульного листа в нём тоже нет, так что непонятно. Лист номер 14, но на самом деле это 15-й лист файла PDF. Сколько всего листов — непонятно. Дата актуальности — неизвестна. Название объекта очень условное.

А вот рамка из моего проекта:

Указаны адрес объекта, номер листа (соответствует номеру в PDF файле), сколько всего листов, мой сайт, дата последней корректировки (чтобы можно было сравнивать разные версии и понимать, какая новее).

Читаемость чертежа

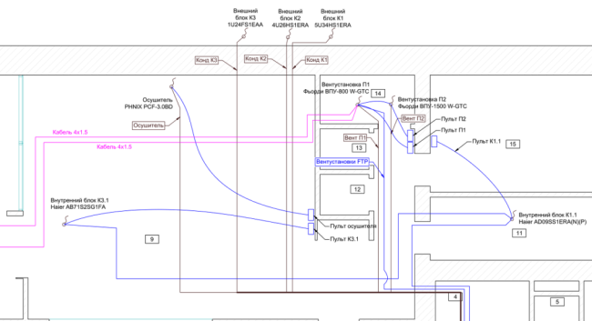
Больше внимания читаемости чертежа. Если на каком-то листе не нужен какой-то слой — отключаем его. Если флажок маркировки кабеля загораживает другой кабель или элемент — двигаем его. Проверяем, чтобы за текстом не было никакой графики, которая делает текст сложночитаемым. Особенно это актуально для чертежей, на которых много элементов.

К сложным чертежам можно дополнительно нарисовать структурную схему. Обязательно перечень кабелей — откуда, куда, тип, маркировка.

Комментарии

На каждом листе — максимальное количество комментариев. Не бесполезных вроде «проложить кабель согласно ГОСТ …», а наиболее полно описывающих способ монтажа и вывода кабелей и возможные проблемы. И сразу пишу ответы на часто задаваемые вопросы вроде запаса кабеля при выводе, возможности покраски элемента или необходимости что-то согласовать.

Что изменилось в моём проектировании за два года - «Умный Дом и решения»

Чего стоит «выстраданный» комментарий «На кабель при монтаже надеть бирку с крупной надписью «Датчик протечки воды», иначе кабель потеряют». Также я подробно пишу, где стоит ставить датчики протечки воды, а где не стоит, и почему.

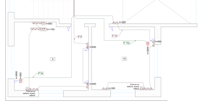
Розетки, выключатели, термостаты — вместе на чертеже

Это очень важная штука. В дизайн-проекте и в моих старых проектах зачастую розетки были на одном листе (с розетками), а выключатели на другом (соответственно, с выключателями). Если где-то в одной рамке стоят и розетки и выключатели, они показываются вместе или какими-то другими условными обозначениями. Это жутко неудобно, особенно монтажникам. Поэтому я отображаю на листах кабелей розеток и выключателей сразу и розетки, и выключатели, и настенные термостаты и прочее, что может быть с ними в одной рамке.

Вот выводы для настенных светильников и прочего уже правильнее показать на других листах, чтобы не загромождать чертёж, но то, что находится в рамках, важно всегда показывать вместе.

Ещё одна важная деталь — те элементы, которые располагаются ниже, нарисованы ближе к стене, а те, которые располагаются выше — дальше от стены. В дизайн-проектах обычно либо наоборот (это не интуитивно), либо вперемешку.

Больше клеммников на DIN рейку

Чтобы не было никаких висящих в воздухе клеммников WAGO или, хуже того, скруток-морковок, лучше сразу предусмотреть везде где можно клеммники на DIN рейку для удобного распределения питания или объединения фаз и нолей (не друг с другом, конечно, фаз с фазами о нолей с нолями).

Чтобы монтажнику не приходилось на месте выдумывать способ удобного подключения, а нужные клеммники уже были подготовлены, потому что учтены в спецификации. К счастью, с одноуровневыми и двухуровневыми клеммниками проблем на рынке нет, производителей много.

Слаботочные кабели (выключатели, датчики) тоже удобнее подключать через клеммники на DIN рейку. Раньше я очень любил использовать клеммники TB-1506 и TB-1512. Они гораздо дешевле, но не такие удобные в установке. Хотя вполне можно использовать.


Как я уже писал, я сторонник того, что проект инженерных систем, сделанный больше года назад, нуждается в корректировке. Вот статья Корректировка и актуализация проекта на эту тему. Сейчас я корректирую проект систем в квартире, который делал два года назад, в 2021-м. Напишу про несколько моментов по оформлению проектов, которые я стал делать по-другому за это время. Оглавление Добавил во все проекты оглавление. Раньше иногда им пренебрегал, а сейчас обязательно пишу его везде, где количество листов больше 5. Вторым листом, после титульного. Нумерация листов и оформление рамки Номера листов в правом нижнем углу каждого листа всегда соответствуют порядковому номеру листа PDF. Раньше мог позволить себе добавить какой-то промежуточный лист с номером типа 10.1 или не считать титульный лист в нумерации, из-за этого много неудобств. Этим грешат почти все дизайн-проекты. Из-за этого, просматривая PDF документ не получается ввести нужный номер листа и сразу перескочить на правильный лист. Также больше внимания уделяется оформлению рамки каждого листа проекта. Наименование и номер листа максимально крупно. Название проекта, адрес объекта, дата корректировки проекта, исполнитель — всё должно быть заметно. Чуть ли не в половине дизайн-проектов (а иногда ещё проктов вентиляции, кондиционеров, отопления) вижу полупустую рамку без адреса и общего количества листов, зато с вписанными фамилиями всех участников проектирования, что мне нужно меньше всего. Смотрите, вот прямо сейчас работаю с дизайн-проектом, там такая рамка: Кто автор проекта? Титульного листа в нём тоже нет, так что непонятно. Лист номер 14, но на самом деле это 15-й лист файла PDF. Сколько всего листов — непонятно. Дата актуальности — неизвестна. Название объекта очень условное. А вот рамка из моего проекта: Указаны адрес объекта, номер листа (соответствует номеру в PDF файле), сколько всего листов, мой сайт, дата последней корректировки (чтобы можно было сравнивать разные версии и понимать, какая новее). Читаемость чертежа Больше внимания читаемости чертежа. Если на каком-то листе не нужен какой-то слой — отключаем его. Если флажок маркировки кабеля загораживает другой кабель или элемент — двигаем его. Проверяем, чтобы за текстом не было никакой графики, которая делает текст сложночитаемым. Особенно это актуально для чертежей, на которых много элементов. К сложным чертежам можно дополнительно нарисовать структурную схему. Обязательно перечень кабелей — откуда, куда, тип, маркировка. Комментарии На каждом листе — максимальное количество комментариев. Не бесполезных вроде «проложить кабель согласно ГОСТ …», а наиболее полно описывающих способ монтажа и вывода кабелей и возможные проблемы. И сразу пишу ответы на часто задаваемые вопросы вроде запаса кабеля при выводе, возможности покраски элемента или необходимости что-то согласовать. Чего стоит «выстраданный» комментарий «На кабель при монтаже надеть бирку с крупной надписью «Датчик протечки воды», иначе кабель потеряют». Также я подробно пишу, где стоит ставить датчики протечки воды, а где не стоит, и почему. Розетки, выключатели, термостаты — вместе на чертеже Это очень важная штука. В дизайн-проекте и в моих старых проектах зачастую розетки были на одном листе (с розетками), а выключатели на другом (соответственно, с выключателями). Если где-то в одной рамке стоят и розетки и выключатели, они показываются вместе или какими-то другими условными обозначениями. Это жутко неудобно, особенно монтажникам. Поэтому я отображаю на листах кабелей розеток и выключателей сразу и розетки, и выключатели, и настенные термостаты и прочее, что может быть с ними в одной рамке. Вот выводы для настенных светильников и прочего уже правильнее показать на других листах, чтобы не загромождать чертёж, но то, что находится в рамках, важно всегда показывать вместе. Ещё одна важная деталь — те элементы, которые располагаются ниже, нарисованы ближе к стене, а те, которые располагаются выше — дальше от стены. В дизайн-проектах обычно либо наоборот (это не интуитивно), либо вперемешку. Больше клеммников на DIN рейку Чтобы не было никаких висящих в воздухе клеммников WAGO или, хуже того, скруток-морковок, лучше сразу предусмотреть везде где можно клеммники на DIN рейку для удобного распределения питания или объединения фаз и нолей (не друг с другом, конечно, фаз с фазами о нолей с нолями). Чтобы монтажнику не приходилось на месте выдумывать способ удобного подключения, а нужные клеммники уже были подготовлены, потому что учтены в спецификации. К счастью, с одноуровневыми и двухуровневыми клеммниками проблем на рынке нет, производителей много. Слаботочные кабели (выключатели, датчики) тоже удобнее подключать через клеммники на DIN рейку. Раньше я очень любил использовать клеммники TB-1506 и TB-1512. Они гораздо дешевле, но не такие удобные в установке. Хотя вполне можно использовать.

Цитирование статьи, картинки - фото скриншот - Rambler News Service.
Иллюстрация к статье - Яндекс. Картинки.
Есть вопросы. Напишите нам.
Общие правила  поведения на сайте.
Как я уже писал, я сторонник того, что проект инженерных систем, сделанный больше года назад, нуждается в корректировке. Вот статья Корректировка и актуализация проекта на эту тему. Сейчас я корректирую проект систем в квартире, который делал два года назад, в 2021-м. Напишу про несколько моментов по оформлению проектов, которые я стал делать по-другому за это время. Оглавление Добавил во все проекты оглавление. Раньше иногда им пренебрегал, а сейчас обязательно пишу его везде, где количество листов больше 5. Вторым листом, после титульного. Нумерация листов и оформление рамки Номера листов в правом нижнем углу каждого листа всегда соответствуют порядковому номеру листа PDF. Раньше мог позволить себе добавить какой-то промежуточный лист с номером типа 10.1 или не считать титульный лист в нумерации, из-за этого много неудобств. Этим грешат почти все дизайн-проекты. Из-за этого, просматривая PDF документ не получается ввести нужный номер листа и сразу перескочить на правильный лист. Также больше внимания уделяется оформлению рамки каждого листа проекта. Наименование и номер листа максимально крупно. Название проекта, адрес объекта, дата корректировки проекта, исполнитель — всё должно быть заметно. Чуть ли не в половине дизайн-проектов (а иногда ещё проктов вентиляции, кондиционеров, отопления) вижу полупустую рамку без адреса и общего количества листов, зато с вписанными фамилиями всех участников проектирования, что мне нужно меньше всего. Смотрите, вот прямо сейчас работаю с дизайн-проектом, там такая рамка: Кто автор проекта? Титульного листа в нём тоже нет, так что непонятно. Лист номер 14, но на самом деле это 15-й лист файла PDF. Сколько всего листов — непонятно. Дата актуальности — неизвестна. Название объекта очень условное. А вот рамка из моего проекта: Указаны адрес объекта, номер листа (соответствует номеру в PDF файле), сколько всего листов, мой сайт, дата последней корректировки (чтобы можно было сравнивать разные версии и понимать, какая новее). Читаемость чертежа Больше внимания читаемости чертежа. Если на каком-то листе не нужен какой-то слой — отключаем его. Если флажок маркировки кабеля загораживает другой кабель или элемент — двигаем его. Проверяем, чтобы за текстом не было никакой графики, которая делает текст сложночитаемым. Особенно это актуально для чертежей, на которых много элементов. К сложным чертежам можно дополнительно нарисовать структурную схему. Обязательно перечень кабелей — откуда, куда, тип, маркировка. Комментарии На каждом листе — максимальное количество комментариев. Не бесполезных вроде «проложить кабель согласно ГОСТ …», а наиболее полно описывающих способ монтажа и вывода кабелей и возможные проблемы. И сразу пишу ответы на часто задаваемые вопросы вроде запаса кабеля при выводе, возможности покраски элемента или необходимости что-то согласовать. Чего стоит «выстраданный» комментарий «На кабель при монтаже надеть бирку с крупной надписью «Датчик протечки воды», иначе кабель потеряют». Также я подробно пишу, где стоит ставить датчики протечки воды, а где не стоит, и почему. Розетки, выключатели, термостаты — вместе на чертеже Это очень важная штука. В дизайн-проекте и в моих старых проектах зачастую розетки были на одном листе (с розетками), а выключатели на другом (соответственно, с выключателями). Если где-то в одной рамке стоят и розетки и выключатели, они показываются вместе или какими-то другими условными обозначениями. Это жутко неудобно, особенно монтажникам. Поэтому я отображаю на листах кабелей розеток и выключателей сразу и розетки, и выключатели, и настенные термостаты и прочее, что может быть с ними в одной рамке. Вот выводы для настенных светильников и прочего уже правильнее показать на других листах, чтобы не загромождать чертёж, но то, что находится в рамках, важно всегда показывать вместе. Ещё одна важная деталь — те элементы, которые располагаются ниже, нарисованы ближе к стене, а те, которые располагаются выше — дальше от стены. В дизайн-проектах обычно либо наоборот (это не интуитивно), либо вперемешку. Больше клеммников на DIN рейку Чтобы не было никаких висящих в воздухе клеммников WAGO или, хуже того, скруток-морковок, лучше сразу предусмотреть везде где можно клеммники на DIN рейку для удобного распределения питания или объединения фаз и нолей (не друг с другом, конечно, фаз с фазами о нолей с нолями). Чтобы монтажнику не приходилось на месте выдумывать способ удобного подключения, а нужные клеммники уже были подготовлены, потому что учтены в спецификации. К счастью, с одноуровневыми и двухуровневыми клеммниками проблем на рынке нет, производителей много. Слаботочные кабели (выключатели, датчики) тоже удобнее подключать через клеммники на DIN рейку. Раньше я очень любил использовать клеммники TB-1506 и TB-1512. Они гораздо дешевле, но не такие удобные в установке. Хотя вполне можно использовать.


Комментарии (0)
img
Разные мысли: кризис общения, сложность созвона, обычные электрики - «Умный Дом и решения»

Эта статья долго лежала у меня в черновиках и сначала называлась «мысли под конец 2025 года», но пролежала ещё немного и публикуется только сейчас.

Категории сайта
Разное

Производитель и новинки производства

Это не только возможность управлять лампочкой со смартфона, а слаженная, незаметная для Вас, работа всех систем дома как инструментов в оркестре.

       
img
Новинки / Умный Дом и решения / Умная Лампочка / Zigbee / Умные Решения
Shelly анонсировала новую линейку устройств для умного дома с поддержкой Matter - «Умный Дом и решения»

Компания Shelly анонсировала новую линейку устройств для умного дома — Gen 4. В линейку вошли датчики, реле, умные вилки (аналог умной розетки) и

img
Новинки / Умный Дом и решения / Производитель / Умные Решения
Хакеры все чаще используют уязвимости умных устройств для доступа к домашним сетям - «Умный Дом и решения»

Специалисты по кибербезопасности отмечают растущие риски взлома устройств умного дома. В последнее время злоумышленники часто получают доступ к

  • Ward
  • 28-02-2026, 16:30
  • 1
img
Умный Дом и решения / Производитель / Яндекс / Новинки / Умные Решения
Эксперты предполагают дальнейший рост рынка умных колонок с Алисой - «Умный Дом и решения»

В 2025 году рынок электроники испытывал серьёзное давление. Динамика в различных категориях различалась, однако в целом объём продаж электроники

img
Новинки / Производитель / СТАТЬИ / Бренд / Смарт.ТВ / Строительство / Умный Дом и решения
Разные мысли: кризис общения, сложность созвона, обычные электрики - «Умный Дом и решения»

Эта статья долго лежала у меня в черновиках и сначала называлась «мысли под конец 2025 года», но пролежала ещё немного и публикуется только сейчас.

img
Новинки / Aqara / Производитель / СТАТЬИ / Умный Дом и решения / Умные Решения
Aqara.ru представили четыре варианта светодиодной ленты Aqara T1 DIY - «Умный Дом и решения»

Aqara.ru объявили о старте продаж в России светодиодной ленты Aqara T1 DIY, призванной стать универсальным решением для организации освещения в

img
Новинки / Яндекс / Умный Дом и решения / Умные Решения
Колонки с Алисой научились понимать не только «штампы» - «Умный Дом и решения»

Алиса в устройствах научилась понимать не только стандартные команды, но и запросы в свободной форме. Например, фраза «Алиса, пора прибраться»

Top.Mail.Ru