Ошибки в дизайн-проектах - «Умный Дом и решения»
- Bradshaw
- 07-июн-2019, 20:45
- 0 комментариев
- 2 458 просмотров
Я постоянно имею дело с дизайн-проектами. На базе дизайн-проекта делается проект кабелей, так что дизайн мне приходится изучать очень тщательно. Не менее, чем в половине проектов я вижу одни и те же очень странные ошибки. Почему я уверен, что это именно ошибки, а не видение дизайнера? Потому что дизайн-проект, так же как и инженерный проект, является заданием для монтажников и отделочников, он должен быть максимально понятным.
Кто-то гордо скажет, что раз я в дизайн-проекте чего-то не понимаю, то это со мной что-то не так. Не соглашусь. Раз уж мне приходится вглядываться в линии на мониторе и пытаться понять, что имелось в виду, то от строителей на объекте, изучающих проект с распечатки или с экрана смартфона, можно ждать любой интерпретации нарисованного.
Над понятностью своего проекта я постоянно работаю. Как нарисовать так, чтобы сразу было ясно, как подключить тот или иной датчик или привод. В дизайн-проекте элементов, вызывающих вопросы, может быть гораздо больше, среди них есть совсем очевидные проблемы оформления, которые повторяются в разных проектах.
Я не буду затрагивать такие вещи как развёртки, которые непонятно к чему относятся, визуализации, по которым не понять, что это за помещение, и элементы, для которых забыли указать размерную привязку. Я напишу о более очевидных вещах, которые сильно усложняют монтаж и вызывают вопросы.
Это просто бросается в глаза. Если на стене несколько элементов расположены один над другим, то ближе к стене надо рисовать тот, который ниже, а дальше тот, который выше. Элементы — это розетки, выключатель, термостат, домофон и прочее. Ничем иным, как только желанием быть нестандартным дизайнером, мне этот нонкомформизм не объяснить, но зачастую в проектах рисуется наоборот:
Здесь мы видим, что ближе к стене нарисовано то, что выше, а дальше то, что ниже. Ну хорошо, скажете вы, дизайнеру так удобнее в данном случае. Но посмотрим в другом месте этот же проект:
Справа ниже нарисован более высокий элемент, а слева ниже менее высокий. Удобно? Вот ещё пример из другого проекта:
Здесь выключатель, который нарисован у самой стены, должен быть на высоте 900мм. Выше него нарисованы розетки на высоте 600, а ещё выше домофон на высоте 1500. То есть, всё вообще вразнобой.
О, это мой любимый пункт. Я даже писал статью про условные обозначения в дизайн-проектах. Дизайнеры как будто придумывают с нуля все условные обозначения, как будто никто до них никогда ни розеток, ни термостатов не рисовал. Возможно, вы обратили внимание на обозначения из скриншотов выше. Например, как вам электровывод для домофона, нарисованный точно как знак заземления? А вот мини-флажки, которыми обозначены выключатели:
Замечаете различие между розеткой и переключателем? Я с трудом. Понятно, что цвет отличается, но это принципиально разные вещи, зачем их обозначили так похоже?
Вот ещё забавные:
Как ещё обозначить роутер, как ни зелёным ящиком. LAN розетку решили обозначить IP, что было бы гораздо логичнее для влагозащищённой розетки. Имеется в виду, наверное, что у того, что включено в розетку, есть IP адрес. Про «Антену» я ещё чуть ниже напишу. О, вот ещё очень забавные:
Как вам «RS-45»? Имелось в виду, может, RJ-45, но для розетки интернет отдельное обозначение. Может, RS-485 предусмотрел дизайнер? В проекте это обозначение соответствует месту, предусмотренному для роутера. Дальше идут кружочки и точечки разных цветов. Вывод провода управления (что бы это ни значило) тоже радует. Можно весь ассортимент знаков дорожного движения включить в дело.
Я сейчас перебираю все сохранённые у себя дизайн-проекты и в каждом вижу условные обозначения, во-первых, разные, во-вторых, крайне оригинальные. Здесь меня особенно радуют «вкл/выкл теплого пола» (то ли термостат, то ли просто выключатель, непонятно) и LAN выходы, одноклавишный и двухклавишный. И регулировки отопления и штор, по ним тоже не понятно, что имеется в виду, выключатели или что-то ещё.
Я использую следующие обозначения выключателей:
Это обозначение соответствует официальному для выключателей встроенной установки (то есть, не накладных). У переключателей Т-образная лапка отходит от круга ещё в другую сторону.
Вот, на мой взгляд, понятные обозначения розеток:
Если кто-то скажет, что это не дизайнерская, а моя задача думать о том, откуда что удобнее включать, то тут я поспорю, конечно. Дизайнер должен думать не только о цвете обоев и расстановке мебели, но и о том, с какой кнопки что включать.
Вот пример неудачного со всех сторон проекта. Санузел.
Во-первых, безумное нагромождение линий. Где-то контуры мебели, где-то линии привязок выключателей, очень сложно разобраться. Всего-то надо было отключить слой мебели, не добавлять её на чертёж, на котором она не нужна. Чем отличается закрашенный красным выключатель снаружи санузла от двух незакрашенных изнутри? В условных обозначениях написано, что закрашенный — проходной, но почему, он же включает ленты, которые больше ни от чего не включаются?
В створе двери эти две синие дуги — датчик открывания двери. Высоту уточнить у заказчика. Заказчик должен сказать высоту установки датчика открывания двери? А зачем он вообще нужен, датчик открывания двери санузла?
Как работать со светом, когда есть выключатели и внутри, и снаружи? Типа, снаружи включим часть света, чтобы не темно было входить, а потом внутри ещё пощёлкаем и включим как хотим?
Правый выключатель включает обогрев зеркала. Чтобы не запотевало, очевидно, хотя, вытяжка, работающая по датчику влажности (продаётся в любом строительном магазине) вытянет влагу и не даст запотеть зеркалу. Гость нажимает на выключатель обогрева зеркала — ничего не происходит. Когда вы на него нажимать планируете вообще? Собираясь принять душ надо не забыть нажать? Точно забудете. Или если запотело зеркало? Оно отпотевать будет долго, точно больше пяти минут. А выключатель света над зеркалом уместнее у зеркала или на самом зеркале. В общем, можно привыкнуть за какое-то время, но расположение выключателей явно дурацкое.
Вот ещё пример.
Здесь, кстати, дизайнер не подумал, что неплохо было бы на проекте обозначать двери. Чтобы чуть проще было. В данном случае дверь должна быть справа от выключателей 6 и 6а, по центру стены, это указано в плане монтажа стен, но не в плане розеток, выключателей и света. Здесь выключатель зеркала у зеркала, это хорошо. А вот при входе в санузел выключатель вытяжки 6а. Вопрос: в каких случаях надо включать вытяжку, а в каких нет? А если решили, находясь внутри, что надо включить вытяжку, надо выйти, чтобы включить? Есть куча способов управлять вытяжкой, самый логичный и простой из которых — поставить таймер для вытяжки, чтобы она включалась вместе со светом, а выключалась через 5 минут после выключения света. Или хотя бы (как я себе сделал) ставить вытяжку с таймером (опять же, в любом магазине стройтоваров) и ставить внутри санузла кнопку, включающую вытяжку на заданное время + датчик влажности, встроенный в вытяжку.
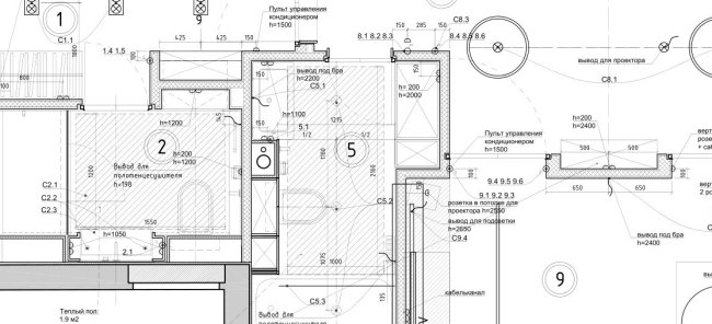
Уж в коллекциях выключателей надо разбираться дизайнеру. Сколько может быть клавиш в одном посте, сколько постов в рамках какой коллекции. Строители же не думают, а просто делают по проекту отверстия в стене для подрозетников. Вот, смотрите:
Во-первых, высота рамок (h=300 и h=1200) нарисована так, что непонятно, что в данном случае выше. И 8 элементов в ряд. 6 розеток и 2 «двухклавишных LAN выхода». В большинстве коллекций рамок максимальная длина рамки — 5 постов. Очень редко бывает 6. В некоторых коллекциях 4. Вот сделали рабочие в стене по проекту 8 подрозетников в ряд, заштукатурили, что потом с ними делать? Долбить и разносить. Точнее, наверное, заштукатуривать средний подрозетник и ставить сбоку ещё один, чтобы две рамки получилось.
Вот из другого проекта. Я уж не говорю о том, что розетки рисовать надо не так, чтобы потом с лупой их рассматривать, сколько там палочек нарисовано.
Здесь 6 палочек-розеток. Кстати, в этом проекте есть спецификация розеток и выключателей, согласно ей максимальная рамка — на 4 поста. По картинке могу предположить, что розетка TV отнесена от основной рамки, но тогда основная рамка на 5 мест, а таких по спецификации нет. То есть, уже надо всю спецификацию пересчитывать.
Могу, кстати, ещё очень посоветовать перед тем, как рисовать телевизионные розетки, уточнять, есть ли в доме вообще магистральное телевидение, в большинстве случаев в многоквартирных домах его уже нет, значит, и розетки не нужны, что поменяет всю расстановку розеток. А если телевидение есть, оно может быть не нужно заказчику, всё через интернет доступно.
В моём понимании, обычное телевидение (эфирное, спутниковое, цифровое) нужно тогда, когда хозяину хочется иметь возможность переключать много-много каналов в поисках чего-то интересного. Да, через интернет много каналов тоже есть, но переключаться они будут в несколько раз медленнее, чем в случае с телевидением.
Ещё, кстати, о роутере. Бывает предусмотрено дизайнером размещение розетки для роутера где-нибудь в шкафу, но не предусмотрено за ним интернет-розеток, через которые уходят кабели на интернет-розетки квартиры. Но с этим я готов мириться, сам разберусь, где лучше какое оборудование компьютерной сети ставить.
Да, трёхклавишные выключатели существуют в некоторых коллекциях. Но это, всё-таки, скорее редкость, подавляющее большинство на 1 или 2 клавиши в одном подрозетнике. Так что по умолчанию, если коллекция выключателей заранее точно не определена, надо обозначать стандартные 1 и 2-клавишные выключатели.
Строители ведь как нарисовано, так и сделают подрозетники, а потом придётся добавлять. Это во-первых. А во-вторых, распределение светильников по клавишам выключателей лучше если продумает дизайнер, а не электрик. Смотрите, какой странный 5-клавишный выключатель:
Для светодиодных лент, а также для многих светодиодных светильников нужны блоки питания. Зачастую, требования производителя светильника не разрешают относить блок питания от светильника более чем на несколько метров, это относится к различным линейным и трековым светильникам. Если в дизайн-проекте определён тип светильника, в нём также должно быть обозначено место размещения блока питания, например, в люке за потолком или в шкафу. Сообщать, что здесь будет вот такой светильник, а где блок питания пусть инженеры решают, не корректно. Подбор блока питания и подключаемые к нему кабели — это инженерная задача, размещение чего-либо в электрощите — тоже, а определение места для блока в комнате за дизайнером.
Часто в одну группу управления объединяются обычные потолочные споты и светодиодная подсветка, для которой нужен блок питания, без обозначения его места размещения. Причём дизайнер часто сам выступает против люков в потолке в таком случае, что особенно неприятно.
Только в каждом десятом дизайн-проекте я вижу рядом с обозначением светодиодной ленты или в условных обозначениях параметры этой ленты: мощность и количество цветов. В любом салоне света есть светодиодные ленты, на которые можно посмотреть и понять, как светит лента 5 ватт на метр, 10 ватт на метр, 15 ватт на метр, и обозначить желаемую мощность в дизайн-проекте.
Аналогично с тем, какой свет должен быть с возможностью диммирования, а какой нет. Это часть освещения помещения.
В 90% дизайн-проектов я вижу, что для варочной поверхности предусмотрена обычная розетка. Но любая обычная розетка рассчитана на ток до 16 ампер, а варочные панели всегда мощнее (кроме отдельностоящих «дачных» моделей).
Всегда для варочной панели надо делать не розетку, а вывод кабеля из стены. В строительных магазинах даже продаётся специальная монтажная коробка для подключения варочной панели. Часто называется «монтажная коробка для плиты». Это просто коробка, внутри которой клеммник, в неё заводится кабель от варочной.
Разумеется, любой электрик знает, как подключать варочную панель. Но обозначение розетки в дизайне может привести к неправильному подсчёту количества закупаемых розеток. А монтажник вполне может, не думая, а работая по чертежу, вставить в стену подрозетник в этом месте.
А вот если плита будет не электрическая, а газовая, то для неё нужна обычная розетка.
Для кондиционеров также надо предусматривать не розетку, а вывод кабеля, кабель подключается на клеммник прямо внутри корпуса кондиционера.
Для видеокамер и точек доступа Wi-Fi не нужна электрическая розетка, они питаются по витой паре от коммутатора (PoE).
Для слаботочного шкафа не надо рисовать десяток электрических и интернет-розеток, в него кабели заходят напрямую, без розеток, это я отражу в своём проекте.
Также электрические розетки не нужны для следующих приборов:
Для них нужны выводы кабеля из стены.
Кстати, если в квартире перед дверью ставится индивидуальная вызывная панель домофона, то дверной звонок не нужен, эта панель уже работает как звонок с переговорным устройством.
Возможно, это делается для экономии бумаги, но зачастую всё, что относится к электрике, рисуется на одном листе дизайн-проекта «Электрика»: свет, выключатели, розетки, тёплые полы, выводы для вытяжек и кондиционеров, даже датчики протечки воды, видеокамеры и Wi-Fi точки. И размерные привязки для всех этих элементов. Это выглядит ужасно. Многие комментарии написаны выносками, которые на чертёж уже не помещаются, а вынесены за его пределы.
Смотрите, какая красота:
Используйте отличный способ повышения выразительности чертежа — цвет! Он был недоступен, когда проекты рисовали карандашом при помощи кульмана, но сейчас-то можно.
Свет и его размерные привязки надо делать на одном листе, чтобы на нём больше ничего не было, кроме стен и, возможно, мебели, показанной серым цветом и тонкими линиями. Розетки и выключатели с их размерными привязками — на отдельном листе, там же термостаты полов и электровыводы. Привязки света к выключателям — на третьем листе. Слаботочные элементы: камеры, датчики протечки (если их зачем-то хочется показать на дизайне), на отдельном листе. Не жалейте бумаги, в этом случае экономия неуместна.
Важное правило — на каждом листе отключайте те слои, которые на нём не нужны! Например, на листе освещения не нужны розетки или обмеры стен.
ГОСТИНАЯ
КОРИДОР
ТЕРРАСА
Это не только возможность управлять лампочкой со смартфона, а слаженная, незаметная для Вас, работа всех систем дома как инструментов в оркестре.










