Умный Дом в квартире-студии на EasyHomePLC — ТЗ и подготовка чертежа - «Умный Дом и решения» » Умный Дом и решения
Умный Дом в квартире-студии на EasyHomePLC — ТЗ и подготовка чертежа - «Умный Дом и решения»
Что такое Умный дом — это система домашних устройств, связанных между собой и выполняющих действия по команде человека или даже без его участия, по расписанию или сигналу от датчика. Некоторые умные дома управляются через приложения и голосом через умные колонки, другие — с помощью отдельных устройств. Задачи тоже могут быть разными: повысить комфорт, сэкономить время или обеспечить безопасность..

Новинки / Смарт.ТВ / Бренд / Производитель / Умный Дом и решения

Умный Дом в квартире-студии на EasyHomePLC — ТЗ и подготовка чертежа - «Умный Дом и решения»

  • Алина
  • 27-мар-2018, 20:54
  • 0 комментариев
  • 2 237 просмотров

Рассмотрим небольшую квартиру-студию площадью 40 квадратных метров.

Статья, как я планирую, будет интересна следующими моментами:

  • Что вообще можно реализовать в плане автоматики в небольшой квартире
  • Процесс проектирования инженерки квартиры в AutoCad
  • Какова стоимость Умного Дома для квартиры на базе EasyHomePLC

Постараюсь описать процесс как можно подробнее.

Описание задачи

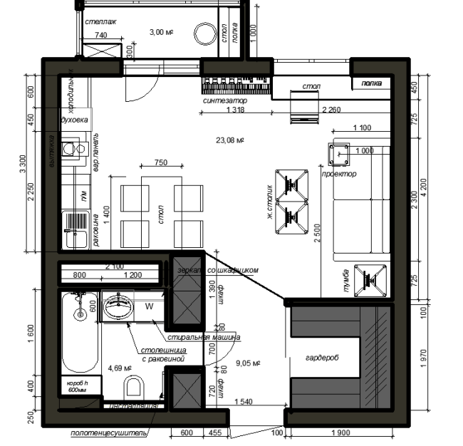
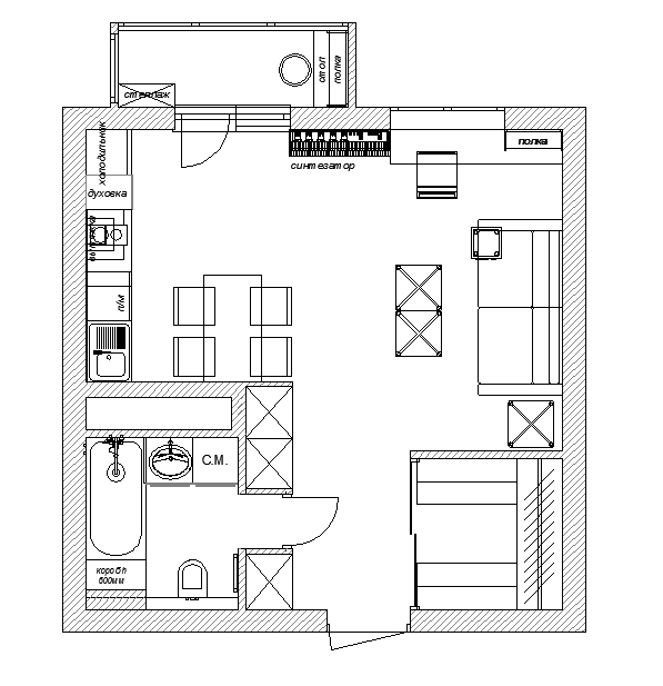
Квартира выглядит следующим образом:

Умный Дом в квартире-студии на EasyHomePLC — ТЗ и подготовка чертежа - «Умный Дом и решения»

Комната, санузел, гардероб и лоджия (лоджии на картинке в 3D нет).

Квартира на стадии строительства, то есть, мы можем монтировать любые кабели, какие заходим.

Задание на проектирование выглядит следующим образом:

  • Электроснабжение квартиры (розетки)
  • Компьютерная сеть и Wi-Fi
  • Домофон
  • Управление климатом (радиаторы отопления, кондиционер, электроподогрев пола)
  • Управление рулонными шторами с электроприводом
  • Управление экраном видеопроектора
  • Управление светом, диммируются зоны кухни и зала, отключение всего света кнопкой у входа, свет в гардеробе и прихожей по датчику движения
  • Управление водонагревателем (включение и выключение)
  • Контроль протечки воды

Для решения задач автоматизации будем использовать контроллер EasyHomePLC, все пожелания отлично подходят под его возможности

Подготовка чертежа

Мне были переданы план квартиры с мебелью и техникой, а также схематичная 3D отрисовка квартиры со всеми нужными мне элементами: светом, розетками, выключателями и прочим. План квартиры с мебелью изначально выглядел достаточно неудобным из-за загруженности элементами и толстыми линиями. Кабели бы плохо смотрелись на нём.

Если вам не интересны детали очистки чертежа в AutoCad, то можно сразу переходить к следующей статье, где разбираются системы подробнее.

По списку слоёв мы сразу видим, что план был экспортирован в формат AutoCad. Как я люблю все эти Ном.-пера!

А вот список блоков чертежа:

Каждая стена отдельным блоком, поэтому работать с чертежом безумно неудобно.

Мне нужны для работы два слоя: стены и мебель. Чтобы я мог отключить мебель и получить голые стены. Для этого все слои, касающиеся мебели, я переношу в слой Мебель. Это делается командой «Объединить выбранные слои в» в списке слоёв.

Затем то же самое проделываю со стенами. Всё, что не мебель, переношу в слой Стены.

Далее удаление ненужных элементов. Мне не нужны размеры, так как чертёж и так выполнен в масштабе. Выделяю размерные линии и удаляю.

Затем избавляюсь от ненужных блоков. Все стены расчленяю на элементы, вместо заливки делаю штриховку, толщину линий убираю на минимум. Получаю вот такую красоту:

Теперь всё хорошо: чертёж чёткий и ясный, лишних элементов нет, всю мебель и сантехнику я могу мгновенно убрать с чертежа. Я ещё какое-то время удаляю с чертежа ненужные элементы и штрихи, чтобы получилось ещё чище.

На этом чертеже только мебель и стены, а все элементы электрики мне были предоставлены на визуализации, нарисованной в SketchUp.

Я поражаюсь тому, насколько детально отрисованы все элементы в SketchUp. Посмотрите, например, на розетки:

А вот счётчики и краны перекрывания воды в ванной:

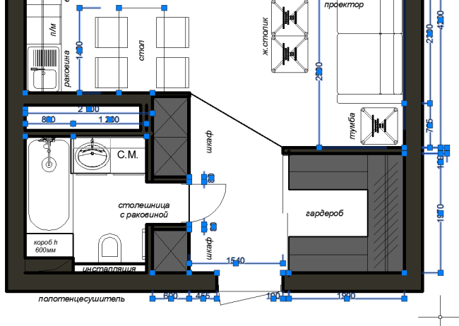
Нужно потратить некоторое время, чтобы перенести на мой чертёж свет, розетки и выключатели. Их всех помещаю в разные слои чертежа: Освещение, Розетки и Выключатели.

Получаю красивый план с размещёнными на нём элементами с размерными привязками.

С этим чертежом уже можно полноценно работать.

Продолжение: Умный дом в квартире-студии, часть 2 — Кабели.


Рассмотрим небольшую квартиру-студию площадью 40 квадратных метров. Статья, как я планирую, будет интересна следующими моментами: Что вообще можно реализовать в плане автоматики в небольшой квартире Процесс проектирования инженерки квартиры в AutoCad Какова стоимость Умного Дома для квартиры на базе EasyHomePLC Постараюсь описать процесс как можно подробнее. Описание задачи Квартира выглядит следующим образом: Комната, санузел, гардероб и лоджия (лоджии на картинке в 3D нет). Квартира на стадии строительства, то есть, мы можем монтировать любые кабели, какие заходим. Задание на проектирование выглядит следующим образом: Электроснабжение квартиры (розетки) Компьютерная сеть и Wi-Fi Домофон Управление климатом (радиаторы отопления, кондиционер, электроподогрев пола) Управление рулонными шторами с электроприводом Управление экраном видеопроектора Управление светом, диммируются зоны кухни и зала, отключение всего света кнопкой у входа, свет в гардеробе и прихожей по датчику движения Управление водонагревателем (включение и выключение) Контроль протечки воды Для решения задач автоматизации будем использовать контроллер EasyHomePLC, все пожелания отлично подходят под его возможности Подготовка чертежа Мне были переданы план квартиры с мебелью и техникой, а также схематичная 3D отрисовка квартиры со всеми нужными мне элементами: светом, розетками, выключателями и прочим. План квартиры с мебелью изначально выглядел достаточно неудобным из-за загруженности элементами и толстыми линиями. Кабели бы плохо смотрелись на нём. Если вам не интересны детали очистки чертежа в AutoCad, то можно сразу переходить к следующей статье, где разбираются системы подробнее. По списку слоёв мы сразу видим, что план был экспортирован в формат AutoCad. Как я люблю все эти Ном.-пера! А вот список блоков чертежа: Каждая стена отдельным блоком, поэтому работать с чертежом безумно неудобно. Мне нужны для работы два слоя: стены и мебель. Чтобы я мог отключить мебель и получить голые стены. Для этого все слои, касающиеся мебели, я переношу в слой Мебель. Это делается командой «Объединить выбранные слои в» в списке слоёв. Затем то же самое проделываю со стенами. Всё, что не мебель, переношу в слой Стены. Далее удаление ненужных элементов. Мне не нужны размеры, так как чертёж и так выполнен в масштабе. Выделяю размерные линии и удаляю. Затем избавляюсь от ненужных блоков. Все стены расчленяю на элементы, вместо заливки делаю штриховку, толщину линий убираю на минимум. Получаю вот такую красоту: Теперь всё хорошо: чертёж чёткий и ясный, лишних элементов нет, всю мебель и сантехнику я могу мгновенно убрать с чертежа. Я ещё какое-то время удаляю с чертежа ненужные элементы и штрихи, чтобы получилось ещё чище. На этом чертеже только мебель и стены, а все элементы электрики мне были предоставлены на визуализации, нарисованной в SketchUp. Я поражаюсь тому, насколько детально отрисованы все элементы в SketchUp. Посмотрите, например, на розетки: А вот счётчики и краны перекрывания воды в ванной: Нужно потратить некоторое время, чтобы перенести на мой чертёж свет, розетки и выключатели. Их всех помещаю в разные слои чертежа: Освещение, Розетки и Выключатели. Получаю красивый план с размещёнными на нём элементами с размерными привязками. С этим чертежом уже можно полноценно работать. Продолжение: Умный дом в квартире-студии, часть 2 — Кабели.

Цитирование статьи, картинки - фото скриншот - Rambler News Service.
Иллюстрация к статье - Яндекс. Картинки.
Есть вопросы. Напишите нам.
Общие правила  поведения на сайте.
Рассмотрим небольшую квартиру-студию площадью 40 квадратных метров. Статья, как я планирую, будет интересна следующими моментами: Что вообще можно реализовать в плане автоматики в небольшой квартире Процесс проектирования инженерки квартиры в AutoCad Какова стоимость Умного Дома для квартиры на базе EasyHomePLC Постараюсь описать процесс как можно подробнее. Описание задачи Квартира выглядит следующим образом: Комната, санузел, гардероб и лоджия (лоджии на картинке в 3D нет). Квартира на стадии строительства, то есть, мы можем монтировать любые кабели, какие заходим. Задание на проектирование выглядит следующим образом: Электроснабжение квартиры (розетки) Компьютерная сеть и Wi-Fi Домофон Управление климатом (радиаторы отопления, кондиционер, электроподогрев пола) Управление рулонными шторами с электроприводом Управление экраном видеопроектора Управление светом, диммируются зоны кухни и зала, отключение всего света кнопкой у входа, свет в гардеробе и прихожей по датчику движения Управление водонагревателем (включение и выключение) Контроль протечки воды Для решения задач автоматизации будем использовать контроллер EasyHomePLC, все пожелания отлично подходят под его возможности Подготовка чертежа Мне были переданы план квартиры с мебелью и техникой, а также схематичная 3D отрисовка квартиры со всеми нужными мне элементами: светом, розетками, выключателями и прочим. План квартиры с мебелью изначально выглядел достаточно неудобным из-за загруженности элементами и толстыми линиями. Кабели бы плохо смотрелись на нём. Если вам не интересны детали очистки чертежа в AutoCad, то можно сразу переходить к следующей статье, где разбираются системы подробнее. По списку слоёв мы сразу видим, что план был экспортирован в формат AutoCad. Как я люблю все эти Ном.-пера! А вот список блоков чертежа: Каждая стена отдельным блоком, поэтому работать с чертежом безумно неудобно. Мне нужны для работы два слоя: стены и мебель. Чтобы я мог отключить мебель и получить голые стены. Для этого все слои, касающиеся мебели, я переношу в слой Мебель. Это делается командой «Объединить выбранные слои в» в списке слоёв. Затем то же самое проделываю со стенами. Всё, что не мебель, переношу в слой Стены. Далее удаление ненужных элементов. Мне не нужны размеры, так как чертёж и так выполнен в масштабе. Выделяю размерные линии и удаляю. Затем избавляюсь от ненужных блоков. Все стены расчленяю на элементы, вместо заливки делаю штриховку, толщину линий убираю на минимум. Получаю вот такую красоту: Теперь всё хорошо: чертёж чёткий и ясный, лишних элементов нет, всю мебель и сантехнику я могу мгновенно убрать с чертежа. Я ещё какое-то время удаляю с чертежа ненужные элементы и штрихи, чтобы получилось ещё чище. На этом чертеже только мебель и стены, а все элементы электрики мне были предоставлены на визуализации, нарисованной в SketchUp. Я поражаюсь тому, насколько детально отрисованы все элементы в SketchUp. Посмотрите, например, на розетки: А вот счётчики и краны перекрывания воды в ванной: Нужно потратить некоторое время, чтобы перенести на мой чертёж свет, розетки и выключатели. Их всех помещаю в разные слои чертежа: Освещение, Розетки и Выключатели. Получаю красивый план с размещёнными на нём элементами с размерными привязками. С этим чертежом уже можно полноценно работать. Продолжение: Умный дом в квартире-студии, часть 2 — Кабели.


Комментарии (0)
img
Приложение Fibaro Home Center - «Умный Дом и решения»

Пришло письмо от Fibaro с предложением попробовать новое крутое приложение Fibaro Home Center. Все отличия, как я понял, только в интерфейсе, навряд

Категории сайта
Разное

Производитель и новинки производства

Это не только возможность управлять лампочкой со смартфона, а слаженная, незаметная для Вас, работа всех систем дома как инструментов в оркестре.

       
img
Производитель / Zigbee / Aqara / Новинки / Умные Решения
Aqara выпустила новый термостат с поддержкой Matter - «Умный Дом и решения»

Aqara выпустила термостат Thermostat Hub W200. Это первый термостат компании, который разработан для рынка Северной Америки. Устройство объединяет

img
Новинки / Умный Дом и решения / Производитель / Умная Лампочка / Бренд / Смарт.ТВ / Zigbee / СБЕР / Умные Решения / Умное Реле
Умный дом EKF: всё, что нужно для автоматизации и безопасности жилья - «Умный Дом и решения»

Сегодня мы расскажем вам об «Умном доме» бренда EKF. Раньше мы уже делали пару обзоров умных гаджетов этого бренда, но с тех пор у них появились

img
Производитель / Новинки / Умные Решения
Представлен Matter 1.5.1 для камер. Что нового? - «Умный Дом и решения»

Альянс стандартов подключения (CSA) выпустил небольшое обновление спецификации - Matter 1.5.1. Апдейт улучшает недавно представленные функции из

img
Новинки / Xiaomi / Смарт.ТВ / Производитель / Умный Дом и решения / Умные Решения
Xiaomi показала домашнюю камеру с 12-кратным зумом и функцией ночного видения - «Умный Дом и решения»

Компания Xiaomi представила новую камеру Smart Camera 4 Max AI Zoom Edition. По мнению разработчиков, устройство является самой продвинутой умной

img
Новинки / Бренд / Sprut.hub / Умный Дом и решения / Производитель / Смарт.ТВ
Обновление программного обеспечения Wirenboard wb-2602 - «Умный Дом и решения»

Кажется неинтересным просто переписывать новости разработки с сайта Wirenboard, но в этом обновлении столько классного, что я хотел бы это сделать.

img
Новинки / Смарт.ТВ / Xiaomi / Производитель / Умный Дом и решения / Умные Решения
Домашняя камера Smart Camera 4 Max AI Zoom Edition от Xiaomi выглядит просто потрясающе - «Умный Дом и решения»

Xiaomi представила новую камеру для домашнего видеонаблюдения — Smart Camera 4 Max AI Zoom Edition с функцией ночного зрения. Устройство выделяется

  • Ford
  • 3-04-2026, 11:05
  • 14
Top.Mail.Ru