Обзор квартиры с системой Умного Дома HiTE PRO - «Умный Дом и решения»
- Варвара
- 07-мар-2024, 15:16
- 0 комментариев
- 3 018 просмотров
Завершилась работа над инженеркой 3-комнатной квартиры, в которой было установлено для управления освещением и ещё некоторыми функциями оборудование HiTE PRO. В этой статье напишу о том, что было сделано, и как оно работает.
Также напишу немного полезных сведений про выбор светодиодных ламп.
Начну с того, что система управления освещением была выбрана по следующим требованиям:
Как видите, требований достаточно много. С другой стороны, функционал не должен включать в себя такие вещи как управление кондиционерами, вентустановкой, «умные термостаты» и прочее, что может требовать работу системы по протоколу Modbus.
Рассматривались EasyHomePLC, Wirenboard, экосистема Яндекса — всё не подошло по указанным выше критериям. EasyHomePLC не имеет радиоканала, для управления голосом нужен отдельный сервер, нет Push уведомлений. Wirenboard избыточно сложный. Яндекс сильно зависит от интернета.
Мне на глаза попалась система Yeelight, и я к ней серьёзно приглядывался. Она не отвечает только требованию «Российский производитель», потому что она китайская. Есть много собственных светильников с изменяемой цветовой температурой, пульты (с Bluetooth, что интересно), управление с проводных выключателей — вот это меня привлекло. От интернета работа светильников с пультов и выключателей не зависит. Обзоры хорошие. Я связался с дистрибьютором в Петербурге, назвался супер-блогером и предложил сделать подробный обзор оборудования с технической стороны, так как имеющиеся в сети видеообзоры мне казались неполными. Мне сразу согласились отгрузить оборудование на тест, но за 3 месяца так этого и не сделали, так что остался я без Yeelight, что, я считаю, к лучшему.
Зато я наткнулся на оборудование HiTE PRO и понял, что это идеально то, что мне нужно. По этой системе я написал несколько статей, в которых детально во всём разобрался. Статьи про HiTE PRO можно найти по соответствующему тэгу.
В дополнение к управлению освещением (с диммированием!) в системе будут датчики протечки воды, контроль температуры и влажности воздуха в ванной и спальне, управление вытяжками санузлов — всё это система умеет.
Любая система начинается с проекта. Независимо от того, будет ли в ней какой-то умный дом или всё будет максимально просто.
План кабелей освещения выглядит так:
В наименованиях комнат используется буквенная маркировка, так удобнее заказчику. «Г» — гостиная, «С» — спальня, «И» — игровая, и так далее.
Для освещения используется гибкий многопроволочный кабель КГВВнг(А)-LS 3×0.75, который я использую для 230-вольтового освещения во всех проектах в последнее время.
Насетнные лампы (по проекту это линии Д2 и С2) имеют собственные выключатели на корпусе, весь остальной свет управляется с системы HiTE PRO.
Модули диммеров HiTE PRO устанавливаются под всеми выключателями квартиры. Это обеспечивает нам следующее:
А также при добавлении в систему сервера HiTE PRO Gateway:
Возможностей масса.
Есть маленькое помещение кладовки (обозначена «К»), в ней свет будет включаться при открывании двери и выключаться при её закрывании. Так как оставаться внутри при закрытой двери никто не будет (там места нет), датчик движения не нужен.
Есть три настенных светильника коридора (группа Х2), они могут включаться по датчику движения или просто постоянно гореть ночью как дежурная подсветка.
Вот такие идеи. Свет квартиры относительно простой, без светодиодных лент и подсветок. Планируется, что за счёт диммирования всего света мы и так сможем создать любой уровень освещённости.
По выключателям правило простое — не больше одной клавиши в блоке. Я честно не знаю, как живут люди в квартирах и домах с 4 и больше клавишами в блоках выключателей, для меня две клавиши уже сложные для запоминания если они управляют разными типами света (не «люстра справа» и «люстра слева»). Это моя индивидуальная особенность, конечно, но я решил сделать максимально просто — везде 1 клавиша.
В кухне-гостиной выключатель, отвечающий за свет над кухней, стоит отдельно от выключателя света гостиной. Я даже немного жалею, что не разместил его ещё ближе к кухне, за углом очень неудобно расположенной вентшахты.
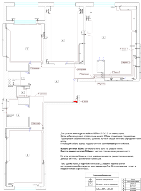
Хоть они и не относятся к Умному Дому, покажу план кабелей розеток квартиры.
Обозначены все монтажные коробки, размерные привязки, траектории кабелей. Обозначено, в какую розетку входит кабель питания и как подключаются розетки на разных уровнях. Именно так и должен выглядеть проект (либо исполнительная схема) кабелей розеток, независимо от их сложности и наличия какой-либо автоматики.
На отдельных листах проекта также показаны выводы под варочную панель, вытяжки санузлов, компьютерная сеть, домофон.
Стоит отметить, что для кладовки и двух санузлов сделан один кабель розеток от щита. С учётом возможной подключаемой техники ток не будет превышать 16 ампер. Но если бы, например, в кладовке предполагалась установка стиральной и сушильной машин, стоило бы распределить кабели по-другому.
Тёплого пола в квартире нет. Если бы он был, поставили бы обычные простые термостаты,подключаемые в щите через реле.
В спальне стоит внутрипольный конвектор с приводом, кабель от привода также заведён в щит.
Итого в щит приходит 26 кабелей:
Теперь про электрощит. Использован накладной пластиковый щит Tekfor на 54 модуля. Схема сборки щита выглядит так:
Ввод питания через автомат номиналом 50 ампер категории В. Затем реле напряжения и кросс-модуль. Одно УЗО на весь свет и модули HiTE PRO, другое на все розетки. УЗО используются типа А. Плита на отдельном дифавтомате для удобства подключения. Холодильник на отдельном дифавтомате, чтобы можно было всё отключить, а его оставить. Роутер тоже отдельно, он без УЗО, так как это всего одна розетка без заземления. Розетки санузлов на отдельном дифавтомате с током утечки 10мА. Номиналы автоматов розеток комнат занижены до 10 ампер ради паранойи.
В правом верхнем углу щита — дверной звонок IEK на DIN рейку, удобное решение.
Кабели заводятся в щит через 2-уровневые клемники ABB (кроме того, что заводится сразу на дифавтоматы).
К автоматам и дифавтоматам питание подводится снизу, хотя считается более правильным подводить его сверху. Я решил нарушить это правило ради более удобного подключения, с точки дрения надёжности работы разницы нет.
Щит в сборке с маркировками:
Вводной автомат и УЗО розеток на фото — временные. Вводной автомат будет заменён на B50, а УЗО розеток на 50А. У EKF были задержки в поставках некоторых модулей.
Кстати про EKF. Бренд был выбран из-за доступности, невысокой цены и хороших отзывов. Про надёжность работы пока ничего сказать не могу, но мне очень не понравилось, что разные элементы выглядят совсем по-разному. Это видно в левом нижнем углу щита — они даже разного цвета.
Вот фото маркировки кабелей, приходящий в щит:
Готов порекомендовать монтажников в Санкт-Петербурге, замечательная бригада. Полный монтаж кабелей в квартире площадью 90 метров, включая штробление стен и установку подрозетников, занял 1.5 недели. Установка щита и электрофурнитуры (розеток, выключателей) — 4 дня. Работают ребята, предупреждаю, только по готовому согласованному проекту, безо всяких «на глазок как-нибудь».
По поводу блоков реле HiTE PRO на DIN рейке в щите. Это 2 4-канальных реле, к ним подключается то, что не управляется с проводных выключателей:
В жилых комнатах основной свет — люстры по центру. Для унификации все люстры работают с лампами с цоколем Е27, это позволяет легко менять лампы если надо сделать светильник ярче.
В ванной, туалете и зоне кухни точечные светильники с цоколем GX53. Вот такие:
Все потолочные лампы квартиры диммируемые.
Лампы GX53 выбраны НАНОСВЕТ L293 LE-GX-D-6. Стоят почти по 700 рублей, зато диммируются в широком диапазоне и не мерцают.
Вообще, если посмотрим рынок светодиодных ламп, то есть явные характеристики, а есть скрытые. Явная — это соотношение потребляемой мощности (в ваттах) и светового потока (в люменах). Чем лампа дешевле, тем оно меньше.
На всех светодиодных лампах до сих пор крупно пишут дурацкую цифру аналога лампы накаливания, хотя не все уже помнят, какая лампа накаливания как светит. К счастью, световой поток тоже пишут, хоть и не так крупно. Мне проще ориентироваться по световому потоку, чем по мощности.
Скрытые характеристики — это уровень мерцания лампы и диапазон диммирования. Ну и реальный световой поток, который может сильно отличаться (в меньшую сторону) от заявленного. Тут нужно либо искать результаты тестирования ламп, либо отзывы. В не очень качественных лампах возможен разброс характеристик от одной лампы к другой.
Мерцающая лампа не означает, что мы смотрим на неё и видим мерцание (кроме совсем запущенных случаев). Мерцание определяется специальным прибором (в идеале) либо через камеру смартфона. Мерцание лампы может проявляться в боли в глазах или даже головной боли. Так что имеет смысл подходить к выбора ламп осознанно.
Для комнат были немного неосмотрительно выбраны очень недорогие (всего 155 рублей) лампы Gauss Filament 9W 610lm 4100К Е27 milky.
Milky означает, что лампы хоть и филаментные, но непрозрачные. Световой поток 610 люменов при мощности 9 ватт — это достаточно мало. Но зато диммируются лампы вполне неплохо. Не мерцают. И цена, конечно, очень низкая.
Но посмотрим для сравнения лампу Osram.
Световой поток — на треть выше выше (806 против 610). Потребляемая мощность — на треть меньше (5.8 против 9). Лампа прозрачная, то есть, гораздо красивее. Зато цена в 2.5 раза выше.
Лампа бренда Uniel (модель LED-A60-10W/4000K/E27/CL/DIM GLA01TR) с таким же световым потоком, если сравнивать с Osram, дешевле, но потребляет все 10 ватт. В отзывах пишут, что диапазон диммирования очень узкий.
А если хочется реально яркой свет, то лампа OSRAM new PARATHOM DIM CL A FIL GL 100 12W/840 E27 даёт световой поток 1521 люмен при потреблении 12 ватт. Стоит почти 900 рублей.
Можно сделать два вывода:
Диммируемые филаментные лампы очень красиво горят на минимальной яркости. Но если у лампы узкий диапазон диммирования, то минимальная яркость будет составлять 50% а то и больше от максимальной, и от диммирования будет не очень много толку.
По отзывам и собственному опыту советую лампы Osram. Диммируемых ламп Osram с цоколем GX53 я не нашёл. Лампы GX53 российской компании Наносвет отлично себя показали, но у них нет филаментных. Так что приходится искать варианты.
Для всей квартиры взяли достаточно простые выключатели и розетки Atlas Design. У них огромный выбор материалов и цветов, они легко доступны в России.
Пластиковые элементы цвета «алюминий» на всю квартиру обошлись в декабре 2023 в сумму порядка 30 тысяч рублей. Куплены в ЭТМ, срок поставки 2 дня. Это розетки, выключатели, рамки, интернет-розетки. Все выключатели типа «нормально-открытая кнопка» для работы с модулями управления HiTE PRO.
Нареканий по качеству в процессе установки ни с какими элементами не было.
Так что не реклама, но вполне могу порекомендовать.
USB розетки не использовались, но вообще у Atlas Design есть зарядные устройства разных типов, включая комбинированные с портами USB-A и USB-C, а также с быстрой зарядкой 45 и 65 ватт. Стоят от 4.5 до 6 тысяч рублей.
Варианта реализации системы управления светом в HiTE PRO два.
Первый вариант — используем только беспроводные выключатели, а модули реле или диммеров ставим в щите или рядом со светильником. Модуль получает сигнал управления по радиоканалу напрямую с выключателя либо с сервера HiTE PRO. Учитывая высокое качество работы радиоканала в HiTE PRO, особенно в пределах одного помещения, способ достаточно надёжный. Явный плюс — экономим на кабеле, штроблении, подрозетнике выключателя.
Второй вариант — устанавливаем модуль реле или диммера в подрозетник под выключатель и подключаем клавишу выключателя ко входу модуля. При этом нажатие клавиши управляет светом без участия радиоканала.
Выключатель не разрывает питание модуля! Он подключается на специальный вход для выключателя. Это две правые клеммы модуля. Питание 230 вольт на модуль приходит постоянно.
Так имеет смысл сделать не от недоверия к радиоканалу, а для того, чтобы схема была универсальной. Если через 10 лет захочется убрать модуль, его всегда можно убрать, а выключатель поменять с кнопочного на обычный, чтобы он коммутировал напряжение на светильник. Кстати, выключатель можно и с модулем использовать обычный, но тогда не получится длительным нажатием диммировать свет.
Модуль в подрозетнике с подключенным выключателем выглядит так:
Очень важно использовать для выключателей подрозетники глубиной не менее 60мм. Я бы использовал и большую глубину, но не нашёл. При сравнении разных подрозетников лучше выбрать те, у которых форма менее конусовидная, то есть, они не сужаются к дну, так как модули HiTE PRO не очень помещаются.
Даже при использовании подрозетников Schneider глубиной 60мм и кабеля света сечением 0.75мм2 в подрозетнике достаточно тесно. Особенно если там ещё нужно поставить клеммники для отвода питания на другой свет помещения.
В квартире, про которую мы говорим, под всеми выключателями света установлены диммеры, кроме подсветки кухни — там стоит реле. Реле HiTE PRO для подсветки кухни изначально не планировалось ставить, но, во первых, с реле эта подсветка будет отключаться по сценариям, во-вторых, можно сказать «Алиса, включи подсветку кухни» и получить неяркий свет в кухне-гостиной.
В спальне справа и слева от кровати установлены беспроводные выключатели, дублирующие выключатель люстры у входа.
К моменту их установки всплыло два «косяка». Назовём их лучше ошибками планирования. Их видно на этом фото.
Ошибка 1 — неправильная привязка рамок с беспроводными выключателями.
Беспроводные выключатели устанавливаются в рамки с розетками над прикроватными тумбами, но не требуют подрозетника. Сзади они плоские, крепятся к стене на двухсторонний скотч (в комплекте) или саморезы. В проекте я не указал их вообще, чтобы строители не путались и случайно не поставили подрозетник. Разумеется, строители думали, что над тумбой будет одна розетка, и расположили её на одной вертикальной оси со светильником. И когда добавился выключатель, получилось, что центр рамки не совпал с осью светильника и центром тумбы.
Ошибка 2 — несовпадение цветов беспроводного выключателя и розетки.
Для всей квартиры использовалась электрофурнитура цвета Алюминий. Светло-серый, если по-простому. У пластиковых элементов Atlas Design целых 14 вариантов цвета.
А вот у радиовыключателей HiTE PRO вариантов цвета всего 4: Белый, Бежевый, Чёрный и Серый.
И вот этот Серый гораздо ближе к чёрному, чем к Алюминию. Пришлось использовать выключатели белого цвета, они лучше сочетаются с имеющимися рамками.
Если бы заказчики были более взыскательными, решение было бы таким: поставить рядом с розеткой ещё один подрозетник, в него модуль HiTE PRO UNI для передачи нажатия клавиши и кнопочный выключатель Atlas Design цвета Алюминий.
Надо сказать, что беспроводные выключатели работают точно так же, как проводные, подключенные к модулю HiTE PRO Relay-DIM — короткое нажатие плавно включает и выключает, длинное нажатие диммирует.
На прикроватной тумбе видно датчик температуры воздуха для управления конвектором. В спальне это всегда идеальное место для датчика температуры — у кровати примерно на высоте лежащего на ней человека.
В квартире устанавливаются датчики протечки: под мойкой кухни, за стиральной машиной, под ванной, под узлом ввода воды.
Датчики протечки воды подписаны при настройке, чтобы не перепутать, какой куда класть.
Датчики сообщают о тревоге на контроллер, он перекрывает ввод воды в квартиру. Краны управляются модулем Drive.
Вот так выглядят установленные краны Нептун Профи 220:
Модуль HiTE PRO Drive в монтажной коробке рядом с кранами:
Скриншоты из приложения HiTE PRO. Комнаты для удобства объединены в группы.
Управление вытяжкой ванной сделано с выключателя и автоматически по датчику влажности.
С беспроводного выключателя сигнал идёт на сервер Gateway, в котором прописаны два сценария:
Это позволяет нам не только включить вытяжку, но и выключить, если она чем-то мешает. Одним сценарием такое поведение не сделать.
Также вытяжка включается на 10 минут при высокой влажности воздуха.
В туалете вытяжка включается только принудительно с выключателя на 5 минут, объём воздуха в туалете не такой большой.
В кладовке не предполагается нахождение человека при закрытой двери, так что установлен датчик открывания двери, свет включается при открывании двери и выключается при закрывании.
А что если дверь в кладовку забыли закрыть? Получается, что нужно при открывании не просто включать свет, а включать с таймером на 10 минут. Тогда, если свет погаснет, и кому-то нужна будет кладовка, надо будет закрыть дверь и снова открыть для включения света — неудобно. Зато хороший повод держать дверь закрытой, если не нужно ничего в кладовке.
Можно, конечно, поставить ещё и датчик движения в кладовке, но учитывая стоимость датчика движения решено обойтись пока одним датчиком открывания двери.
В коридоре предусмотрены настенные светильники «вверх-вниз» в качестве дежурной подсветки. Кабель от них заводится на реле HiTE PRO на DIN рейке в щите, выключателя не предусмотрено.
Управление подразумевается по датчику движения. Вот так выглядят датчик движения и светильник. Датчик на дверном наличнике.
Я настроил датчик напрямую на реле управления. Пришлось внимательно прочитать инструкции к датчику и к реле, чтобы не запутаться в последовательности нажатия кнопок на них, но всё получилось.
Алгоритм такой: если освещённость ниже 50%, и датчик увидел движение, он включает подсветку. Через 6 минут, если в последние 3 минуты не было зафиксировано движение, датчик посылает на реле команду выключения подсветки. Если было движение, датчик продлевает таймер.
Алгоритм работает без участия сервера, и, в принципе, его вообще можно не заводить на сервер. Но завести на сервер всё же желательно — он будет вести историю срабатывания датчика движения, по ней можно определить, например, есть ли кто-то дома.
Для того, чтобы можно было во время ремонта включать приборы, управляемые с модулей HiTE PRO на DIN рейку, был куплен 4-кнопочный пульт.
В будущем его можно использовать для каких-то других нужд. А на время ремонта, когда сервер ещё не установлен, очень удобно.
Во внутрипольном конвекторе установлен привод Valtec, от него идёт кабель в щит на реле HiTE PRO.
В спальне на прикроватной тумбе лежит датчик температуры и влажности.
Мы можем задавать желаемую температуру воздуха, система будет её поддерживать. Можно сделать расписание, по которому температура будет, например, снижаться днём и ночью и повышаться утром и вечером.
Система HiTE PRO очень просто добавляется в экосистему умного дома Яндекса. Нужно включить соответствующую настройку в приложении HiTE PRO, а затем в приложении Яндекс добавить все устройства.
По каждому устройству можно задать комнату (список комнат в приложении HiTE PRO и Яндекс может быть разным) и название устройства, такое, чтобы удобно было обращаться к нему.
Сразу начинает работать голосовое управление через Алису. Можно говорить в Яндекс Станцию или в смартфон с приложением.
Вот расчёт стоимости оборудования HiTE PRO на систему. Цены действительны на март 2024.
Радиовыключателей всего 4: для вытяжек санузлов и для управления светом в спальне от кровати. Если бы все выключатели квартиры были беспроводными, их было бы 13 штук. Но было бы сильно меньше трат на штробление стен для выключателей и подрозетники. Модули диммеров и реле нужно было бы устанавливать в щите либо за потолком, хотя в случае люстр я не очень понимаю, куда их там ставить. Тут выбор за вами, я выше обосновал плюсы установки диммеров за выключателями — универсальность и гибкость.
Датчики движения устанавливаются в коридоре, в ванной, в туалете. В будущем добавится второй датчик в коридоре, чтобы улучшить включение подсветки, одного не хватает.
Из дополнительного оборудования — краны перекрывания воды (порядка 7 тысяч рублей за каждый) и привод на внутрипольный конвектор (порядка 2 тысяч рублей).
Это не только возможность управлять лампочкой со смартфона, а слаженная, незаметная для Вас, работа всех систем дома как инструментов в оркестре.









