Расчёт Умного Дома на Larnitech для 3-комнатной квартиры - «Умный Дом и решения» » Умный Дом и решения
Расчёт Умного Дома на Larnitech для 3-комнатной квартиры - «Умный Дом и решения»
Что такое Умный дом — это система домашних устройств, связанных между собой и выполняющих действия по команде человека или даже без его участия, по расписанию или сигналу от датчика. Некоторые умные дома управляются через приложения и голосом через умные колонки, другие — с помощью отдельных устройств. Задачи тоже могут быть разными: повысить комфорт, сэкономить время или обеспечить безопасность..

Новинки / Бренд / Производитель / Умный Дом и решения

Расчёт Умного Дома на Larnitech для 3-комнатной квартиры - «Умный Дом и решения»

  • Любомира
  • 09-авг-2021, 19:59
  • 0 комментариев
  • 2 320 просмотров

Меня попросили публиковать больше расчётов оборудования различных систем Умного Дома, чтобы было проще принять решение о том, какую систему выбрать. Напишу смету на оборудование Larnitech для 3-комнатной квартиры площадью 90 квадратных метров с двумя санузлами, постирочной и лоджией.

Надо сказать, что в этой квартире есть нестандартный момент — датчики углекислого газа в каждом помещении, что делает смету чуть большей, чем в среднем. А также управление 4-мя кондиционерами и вентустановкой.

Возможности системы

Спроектированная система умеет следующие вещи:

  • Управление 21 группой освещения, в том числе четырьмя с возможностью диммирования
  • Управление тремя электрическими тёплыми полами с контролем температуры каждого пола
  • Управление восемью розетками в квартире с контроллера Larnitech, отдельное управление каждой розеткой
  • Управление питанием варочной панели
  • 5 датчиков протечки воды, перекрывание ввода воды в квартиру при тревоге. В квартиру вода входит в одном месте
  • управление четырьмя моторизированными карнизами
  • управление тремя вытяжными вентиляторами санузлов
  • управление двумя электрическими полотенцесушителями
  • управление четырьмя радиаторами водяного отопления
  • управление вентустановкой Comfovent (через модуль DW-RS485, драйвер для Comfovent есть в системе)
  • управление четырьмя кондиционерами Mitsubishi (через модули Larnitech BW-AC в каждом внутреннем блоке)
  • в четырёх помещениях контроль параметров воздуха: температура, влажность, освещённость, СО2
  • в санузлах, постирочной, прихожей и коридоре датчики движения для управления освещениям

В квартире есть несколько светильников с собственными выключателями на корпусе: подсветка зеркал, прикроватные лампы. Они не управляются с системы Умный Дом по отдельности, но предусмотрено их общее отключение, чтобы не оставить никакой свет гореть при уходе из дома. Необходимо будет написать скрипт, чтобы при возвращении домой (срабатывание датчика движения в прихожей или снятие с охраны системы Ajax) питание этих групп света включалось обратно. Некоторое неудобство будет в том, что эти подсветки включатся в то состояние, в котором они были в момент выключения, нужно будет отключать их с кнопки на корпусе.

Кроме системы Умный Дом на оборудовании Larnitech в квартире были спроектированы:

  • Электроснабжение
  • Охранная и пожарная сигнализация Ajax
  • Компьютерная сеть с роутером и точками доступа Keenetic и 16-портовым коммутатором
  • Домофония Визит

Технические решения

Вот так выглядит шина CAN с контроллером, модулями и датчиками Larnitech:

Система построена на базе контроллера Larnitech Metaforsa-2. Его отличие от контроллера Larnitech DE-MG в том, что в контроллере Metaforsa-2 сразу встроены 10 реле, 24 входа, 4 диммера, в комплекте идут 2 датчика протечки воды, 4 датчика движения (простых, без данных об интенсивности движения), датчики температуры 1-wire (у нас они используются только для измерения температуры в щите и слаботочном шкафу). Получается несколько дешевле, чем если бы мы взяли контроллер DE-MG, в котором нет никаких входов и выходов вообще.

Питается система от двух блоков питания: Meanwell DRC-100B для контроллера и модулей и Meanwell DRC-60B для датчиков. К этим блокам питания подключаются аккумуляторы 12В 1.2АЧ, по два аккумулятора к каждому блоку.

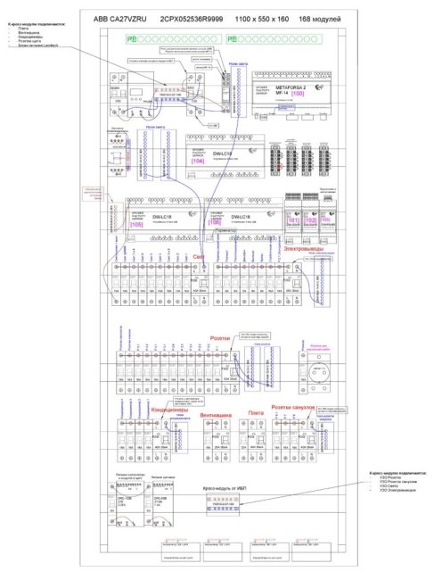
В качестве электрощита используется ABB CA27VZRU, накладной, размеры 1100 x 550 x 160мм, 168 модулей. Стоимость щита порядка 36 тысяч рублей.

Внизу оставлено место для блоков питания светодиодных лент и подсветок.

Вот так выглядит слаботочный шкаф:

Стоимость оборудования Larnitech

Смета на Larnitech для этой квартиры получилась такая:

Датчиков протечки воды посчитано 3, так как в комплекте с Metaforsa-2 уже идут два датчика.

Датчики движения из комплекта используются для коридора и прихожей, а более чувствительные датчики CW-M-II.C ставим в санузлы и постирочную.

Модули интеграции с кондиционерами BW-AC можно приобрести отдельно после установки системы, чтобы уменьшить первую смету на 1588 евро.

Датчики СО2 достаточно дорогие, обычно их не ставят в каждую комнату, но в этой квартире они будут. Стоимость одного датчика параметров воздуха, включающего СО2 — 397 евро (также там встроен ИК-передатчик и датчик движения). Датчик температуры, влажности и освещённости без СО2 стоил бы 137 евро.

Кроме того, для оборудования Larnitech требуются блоки питания, аккумуляторы и слаботочные клеммники, их стоимость порядка 7 тысяч рублей.

Стоимость двух кранов перекрывания воды Neptun и четырёх приводов на радиаторы Oventrop примерно 27 тысяч рублей.

Стоимость электрощита и его наполнения (автоматы, УЗО, кросс-модули, реле напряжения, клеммники, соединительные кабели, шины) — порядка 95 тысяч рублей. Питание квартиры однофазное, если бы фазы было три, то щит был бы крупнее, а оборудование в щите дороже. Автоматы и УЗО — ABB серий S200 и F200.


Меня попросили публиковать больше расчётов оборудования различных систем Умного Дома, чтобы было проще принять решение о том, какую систему выбрать. Напишу смету на оборудование Larnitech для 3-комнатной квартиры площадью 90 квадратных метров с двумя санузлами, постирочной и лоджией. Надо сказать, что в этой квартире есть нестандартный момент — датчики углекислого газа в каждом помещении, что делает смету чуть большей, чем в среднем. А также управление 4-мя кондиционерами и вентустановкой. Возможности системы Спроектированная система умеет следующие вещи: Управление 21 группой освещения, в том числе четырьмя с возможностью диммирования Управление тремя электрическими тёплыми полами с контролем температуры каждого пола Управление восемью розетками в квартире с контроллера Larnitech, отдельное управление каждой розеткой Управление питанием варочной панели 5 датчиков протечки воды, перекрывание ввода воды в квартиру при тревоге. В квартиру вода входит в одном месте управление четырьмя моторизированными карнизами управление тремя вытяжными вентиляторами санузлов управление двумя электрическими полотенцесушителями управление четырьмя радиаторами водяного отопления управление вентустановкой Comfovent (через модуль DW-RS485, драйвер для Comfovent есть в системе) управление четырьмя кондиционерами Mitsubishi (через модули Larnitech BW-AC в каждом внутреннем блоке) в четырёх помещениях контроль параметров воздуха: температура, влажность, освещённость, СО2 в санузлах, постирочной, прихожей и коридоре датчики движения для управления освещениям В квартире есть несколько светильников с собственными выключателями на корпусе: подсветка зеркал, прикроватные лампы. Они не управляются с системы Умный Дом по отдельности, но предусмотрено их общее отключение, чтобы не оставить никакой свет гореть при уходе из дома. Необходимо будет написать скрипт, чтобы при возвращении домой (срабатывание датчика движения в прихожей или снятие с охраны системы Ajax) питание этих групп света включалось обратно. Некоторое неудобство будет в том, что эти подсветки включатся в то состояние, в котором они были в момент выключения, нужно будет отключать их с кнопки на корпусе. Кроме системы Умный Дом на оборудовании Larnitech в квартире были спроектированы: Электроснабжение Охранная и пожарная сигнализация Ajax Компьютерная сеть с роутером и точками доступа Keenetic и 16-портовым коммутатором Домофония Визит Технические решения Вот так выглядит шина CAN с контроллером, модулями и датчиками Larnitech: Система построена на базе контроллера Larnitech Metaforsa-2. Его отличие от контроллера Larnitech DE-MG в том, что в контроллере Metaforsa-2 сразу встроены 10 реле, 24 входа, 4 диммера, в комплекте идут 2 датчика протечки воды, 4 датчика движения (простых, без данных об интенсивности движения), датчики температуры 1-wire (у нас они используются только для измерения температуры в щите и слаботочном шкафу). Получается несколько дешевле, чем если бы мы взяли контроллер DE-MG, в котором нет никаких входов и выходов вообще. Питается система от двух блоков питания: Meanwell DRC-100B для контроллера и модулей и Meanwell DRC-60B для датчиков. К этим блокам питания подключаются аккумуляторы 12В 1.2АЧ, по два аккумулятора к каждому блоку. В качестве электрощита используется ABB CA27VZRU, накладной, размеры 1100 x 550 x 160мм, 168 модулей. Стоимость щита порядка 36 тысяч рублей. Внизу оставлено место для блоков питания светодиодных лент и подсветок. Вот так выглядит слаботочный шкаф: Стоимость оборудования Larnitech Смета на Larnitech для этой квартиры получилась такая: Датчиков протечки воды посчитано 3, так как в комплекте с Metaforsa-2 уже идут два датчика. Датчики движения из комплекта используются для коридора и прихожей, а более чувствительные датчики CW-M-II.C ставим в санузлы и постирочную. Модули интеграции с кондиционерами BW-AC можно приобрести отдельно после установки системы, чтобы уменьшить первую смету на 1588 евро. Датчики СО2 достаточно дорогие, обычно их не ставят в каждую комнату, но в этой квартире они будут. Стоимость одного датчика параметров воздуха, включающего СО2 — 397 евро (также там встроен ИК-передатчик и датчик движения). Датчик температуры, влажности и освещённости без СО2 стоил бы 137 евро. Кроме того, для оборудования Larnitech требуются блоки питания, аккумуляторы и слаботочные клеммники, их стоимость порядка 7 тысяч рублей. Стоимость двух кранов перекрывания воды Neptun и четырёх приводов на радиаторы Oventrop примерно 27 тысяч рублей. Стоимость электрощита и его наполнения (автоматы, УЗО, кросс-модули, реле напряжения, клеммники, соединительные кабели, шины) — порядка 95 тысяч рублей. Питание квартиры однофазное, если бы фазы было три, то щит был бы крупнее, а оборудование в щите дороже. Автоматы и УЗО — ABB серий S200 и F200.

Цитирование статьи, картинки - фото скриншот - Rambler News Service.
Иллюстрация к статье - Яндекс. Картинки.
Есть вопросы. Напишите нам.
Общие правила  поведения на сайте.
Меня попросили публиковать больше расчётов оборудования различных систем Умного Дома, чтобы было проще принять решение о том, какую систему выбрать. Напишу смету на оборудование Larnitech для 3-комнатной квартиры площадью 90 квадратных метров с двумя санузлами, постирочной и лоджией. Надо сказать, что в этой квартире есть нестандартный момент — датчики углекислого газа в каждом помещении, что делает смету чуть большей, чем в среднем. А также управление 4-мя кондиционерами и вентустановкой. Возможности системы Спроектированная система умеет следующие вещи: Управление 21 группой освещения, в том числе четырьмя с возможностью диммирования Управление тремя электрическими тёплыми полами с контролем температуры каждого пола Управление восемью розетками в квартире с контроллера Larnitech, отдельное управление каждой розеткой Управление питанием варочной панели 5 датчиков протечки воды, перекрывание ввода воды в квартиру при тревоге. В квартиру вода входит в одном месте управление четырьмя моторизированными карнизами управление тремя вытяжными вентиляторами санузлов управление двумя электрическими полотенцесушителями управление четырьмя радиаторами водяного отопления управление вентустановкой Comfovent (через модуль DW-RS485, драйвер для Comfovent есть в системе) управление четырьмя кондиционерами Mitsubishi (через модули Larnitech BW-AC в каждом внутреннем блоке) в четырёх помещениях контроль параметров воздуха: температура, влажность, освещённость, СО2 в санузлах, постирочной, прихожей и коридоре датчики движения для управления освещениям В квартире есть несколько светильников с собственными выключателями на корпусе: подсветка зеркал, прикроватные лампы. Они не управляются с системы Умный Дом по отдельности, но предусмотрено их общее отключение, чтобы не оставить никакой свет гореть при уходе из дома. Необходимо будет написать скрипт, чтобы при возвращении домой (срабатывание датчика движения в прихожей или снятие с охраны системы Ajax) питание этих групп света включалось обратно. Некоторое неудобство будет в том, что эти подсветки включатся в то состояние, в котором они были в момент выключения, нужно будет отключать их с кнопки на корпусе. Кроме системы Умный Дом на оборудовании Larnitech в квартире были спроектированы: Электроснабжение Охранная и пожарная сигнализация Ajax Компьютерная сеть с роутером и точками доступа Keenetic и 16-портовым коммутатором Домофония Визит Технические решения Вот так выглядит шина CAN с контроллером, модулями и датчиками Larnitech: Система построена на базе контроллера Larnitech Metaforsa-2. Его отличие от контроллера Larnitech DE-MG в том, что в контроллере Metaforsa-2 сразу встроены 10 реле, 24 входа, 4 диммера, в комплекте идут 2 датчика протечки воды, 4 датчика движения (простых, без данных об интенсивности движения), датчики температуры 1-wire (у нас они используются только для измерения температуры в щите и слаботочном шкафу). Получается несколько дешевле, чем если бы мы взяли контроллер DE-MG, в котором нет никаких входов и выходов вообще. Питается система от двух блоков питания: Meanwell DRC-100B для контроллера и модулей и Meanwell DRC-60B для датчиков. К этим блокам питания подключаются аккумуляторы 12В 1.2АЧ, по два аккумулятора к каждому блоку. В качестве электрощита используется ABB CA27VZRU, накладной, размеры 1100 x 550 x 160мм, 168 модулей. Стоимость щита порядка 36 тысяч рублей. Внизу оставлено место для блоков питания светодиодных лент и подсветок. Вот так выглядит слаботочный шкаф: Стоимость оборудования Larnitech Смета на Larnitech для этой квартиры получилась такая: Датчиков протечки воды посчитано 3, так как в комплекте с Metaforsa-2 уже идут два датчика. Датчики движения из комплекта используются для коридора и прихожей, а более чувствительные датчики CW-M-II.C ставим в санузлы и постирочную. Модули интеграции с кондиционерами BW-AC можно приобрести отдельно после установки системы, чтобы уменьшить первую смету на 1588 евро. Датчики СО2 достаточно дорогие, обычно их не ставят в каждую комнату, но в этой квартире они будут. Стоимость одного датчика параметров воздуха, включающего СО2 — 397 евро (также там встроен ИК-передатчик и датчик движения). Датчик температуры, влажности и освещённости без СО2 стоил бы 137 евро. Кроме того, для оборудования Larnitech требуются блоки питания, аккумуляторы и слаботочные клеммники, их стоимость порядка 7 тысяч рублей. Стоимость двух кранов перекрывания воды Neptun и четырёх приводов на радиаторы Oventrop примерно 27 тысяч рублей. Стоимость электрощита и его наполнения (автоматы, УЗО, кросс-модули, реле напряжения, клеммники, соединительные кабели, шины) — порядка 95 тысяч рублей. Питание квартиры однофазное, если бы фазы было три, то щит был бы крупнее, а оборудование в щите дороже. Автоматы и УЗО — ABB серий S200 и F200.


Комментарии (0)
img
Sony анонсировала новые телевизоры Bravia 3 с поддержкой AirPlay 2 и HomeKit - «Умный Дом и решения»

Компания Sony подтвердила запуск новой линейки телевизоров Bravia 3 II-го поколения, которая поддерживает Apple AirPlay 2, Apple HomeKit и Google

Категории сайта
Разное

Производитель и новинки производства

Это не только возможность управлять лампочкой со смартфона, а слаженная, незаметная для Вас, работа всех систем дома как инструментов в оркестре.

       
img
Новинки / СБЕР / Производитель / Умный Дом и решения / Умные Решения
Умный дом Сбер вышел на новый уровень общения - «Умный Дом и решения»

Умный дом Сбер получил весеннее обновление, которое меняет привычные сценарии взаимодействия пользователя с техникой. Появились новые функции,

  • Bush
  • 6-05-2026, 12:21
  • 7
img
Новинки / Яндекс / Sprut.hub / Умный Дом и решения / Производитель / Умная Лампочка / СТАТЬИ / Xiaomi
Управление розетками — проводное или беспроводное? - «Умный Дом и решения»

Порассуждаю над одним вопросом, с которым сталкиваюсь почти каждый раз при проектировании системы Умный Дом в квартире или загородном доме: делать

img
Zigbee / Производитель / СТАТЬИ / Умные Решения
Sonoff представила панель для управления умным домом с поддержкой Matter - «Умный Дом и решения»

Компания Sonoff анонсировала настенную панель NSPanel Pro Gen2. Устройство сочетает в себе функции хаба, выключателя и сенсорного дисплея. Основные

img
Смарт.ТВ / Xiaomi / Новинки / Умные Решения
Xiaomi выпустила умную сушилку для вещей - «Умный Дом и решения»

Компания Xiaomi представила сушилку Mijia Smart Clothes Drying Rack 3. Устройство запустили на платформе Youpin в формате краудфандинга. Основные

img
Новинки / Умный Дом и решения / Смарт.ТВ / Умные Решения
TP-Link анонсировала встраиваемые светильники с поддержкой Matter - «Умный Дом и решения»

Компания TP-Link представила умный встраиваемый 6-дюймовый светильник Tapo L730-6. Устройство поддерживает Matter over Wi-Fi и не требует отдельного

img
Производитель / Умные Решения
Govee выпустила потолочный светильник с поддержкой Matter - «Умный Дом и решения»

Компания Govee представила потолочный светильник Ceiling Light Ultra. Устройство сочетает основное освещение и LED-матрицу для визуальных эффектов.

Top.Mail.Ru